基于同一底层架构及统一的绘图标准设置。不同专业实体可互相识别,并进行三维碰撞检测等协同设计。
风管绘制支持精准定位及实时计算阻力等功能;支持风口与风管可批量连接;水力计算可直接提取平面图进行计算,计算后赋回原图;支持单、双线两种模式,可直接编辑互相转换。
绘制支持各种定位及实时计算阻力等功能;管线与风机盘管等设备可批量连接,自动生系统图;水力计算可直接提取平面图进行计算并赋回;支持单、双线两种模式,可直接编辑互相转换。
可快捷进行传统形式的采暖系统、分户计量系统的平面图、系统图设计;支持散热器与管道多种连接方式,平面图自动生成系统图;水力计算直接提取系统图进行水力计算, 计算后自动赋回平面、系统。
内含设备厂商(软件内含大金、东芝美的等)产品数据库,使用者很方便的行快速设计计算,提供布置设备、管线绘制连接、系统划分计算、生成轴测图系统图、批量修改及标注等功能.
支持直接提取平面定义的防烟分区到软件计算;支持机械防排烟,自然排烟计算;多种系统对象: 楼梯间,避难层,地下汽车库,中庭,房间等; 支持计算结果赋回图面;可输出 Excel 格式报表和 Word 格式报表。
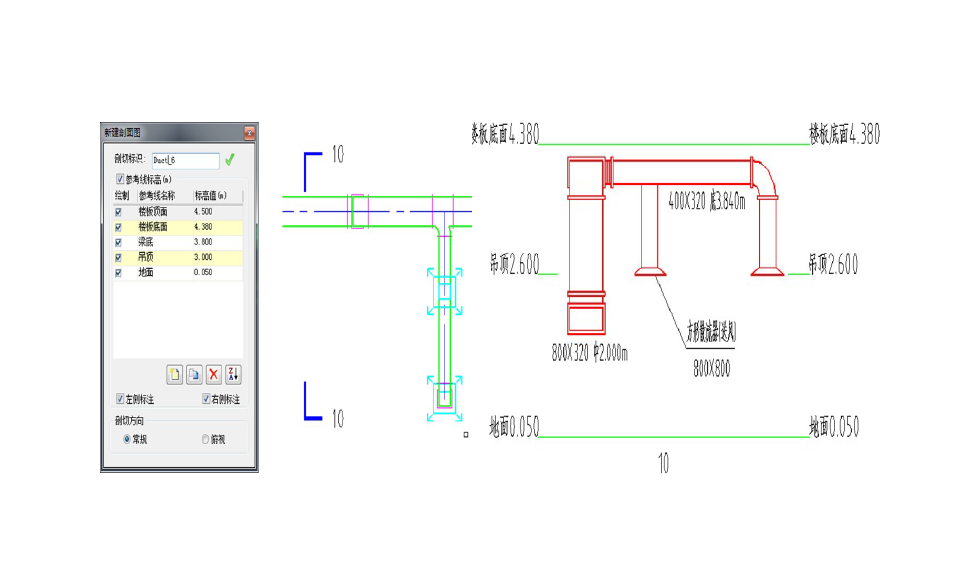
支持不同方式剖切及放大剖切,且修改原图后,剖切图可自动更新联动,剖面图中,支持标注风管尺寸、风口参数等。
图层管理满足定制需求,并且基于图形保存机制,样式随图走,保证同一张图在不同机器上绘图样式的统一性;支持导入和识别 ACS10.0 的图层模板,支持增量更新。
©Glodon Company Limited 1998-2026 All Rights Reserved. 太阳成tyc7111cc
京ICP备10021606号-1
京公网安备11010802021391号
联系地址:北京市海淀区西北旺东路10号院东区13号楼太阳成tyc7111cc信息大厦